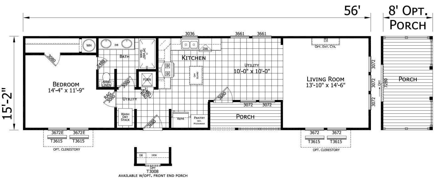
Download Floorplan PDF Download Download Floorplan SQ FT 849 Bedrooms 1 Bathrooms 1 Request Info And Pricing