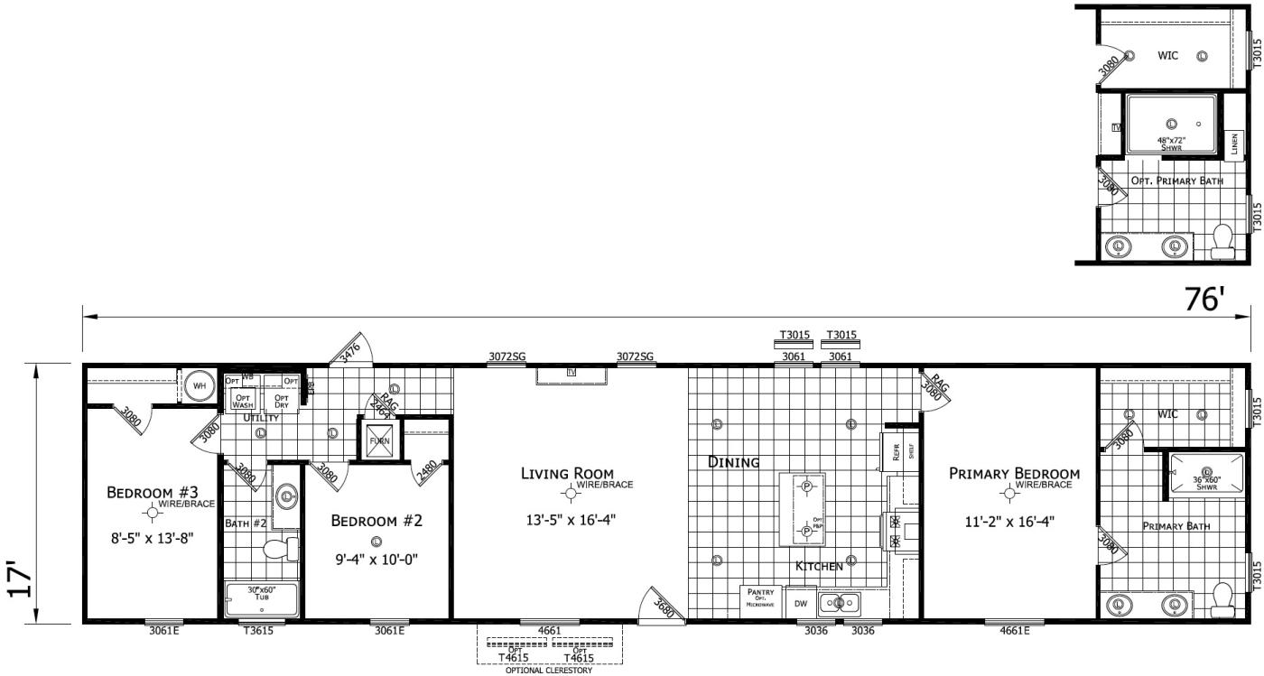
The Briar