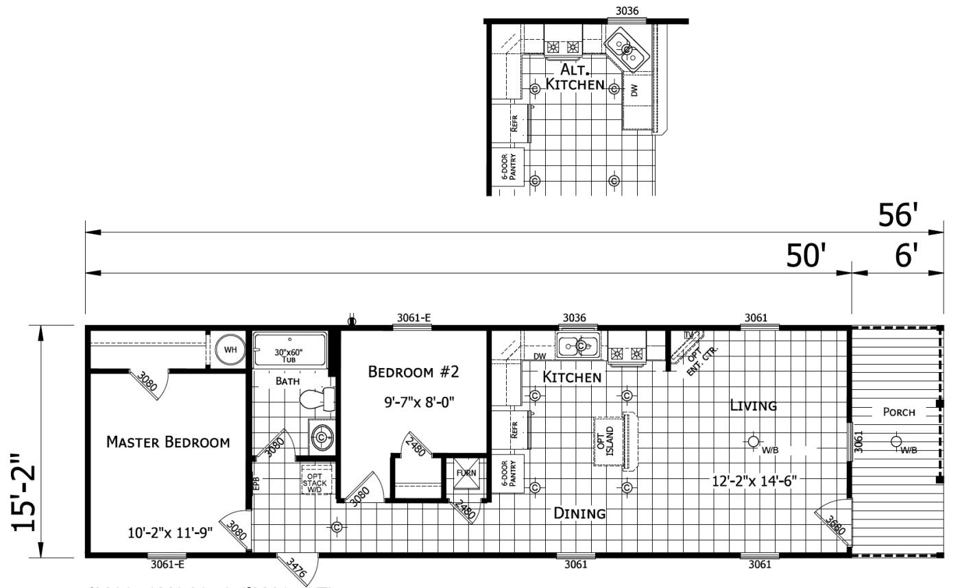
Download Floorplan PDF Download Download Floorplan SQ FT 758 Bedrooms 2 Bathrooms 1 Request Info And Pricing