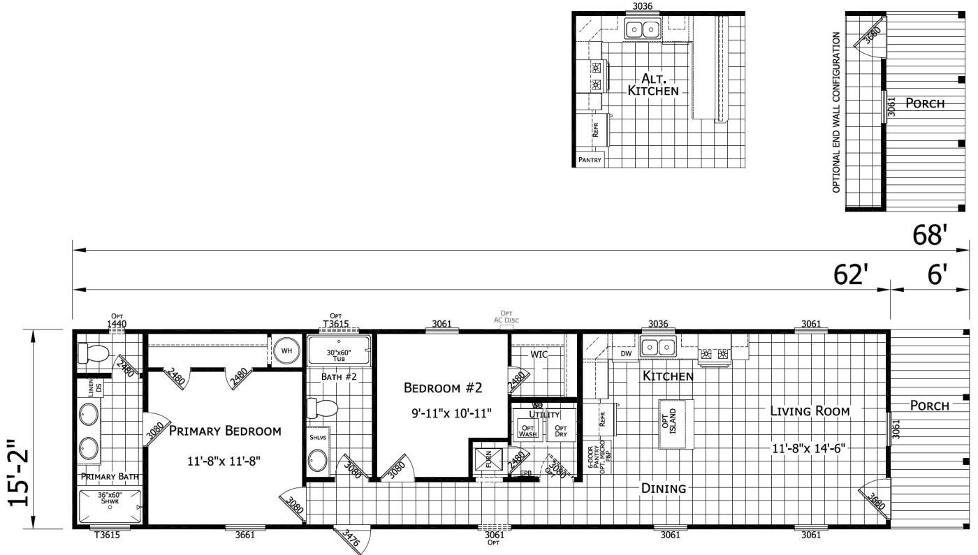
The Charles