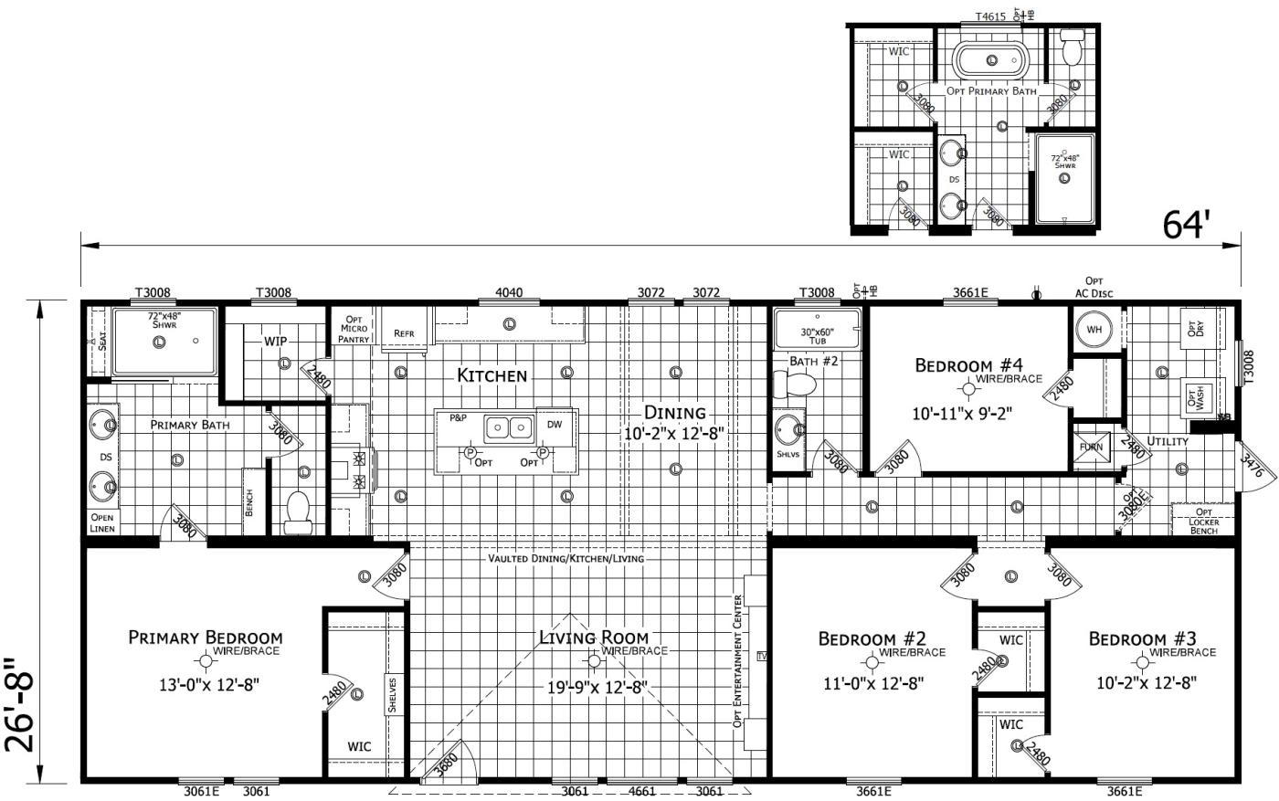
The Eeyore