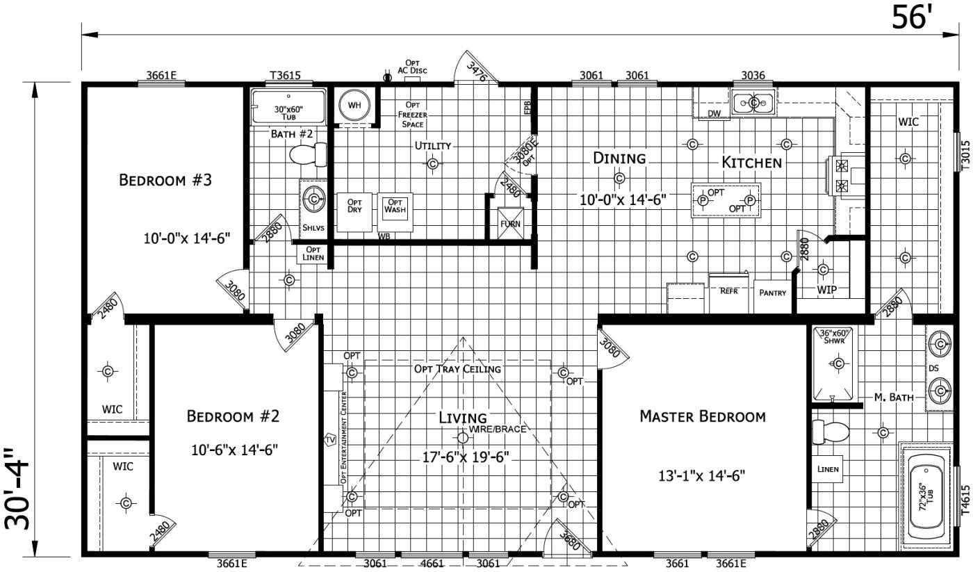
Download Floorplan PDF Download Download Floorplan SQ FT 1699 Bedrooms 3 Bathrooms 2 Request Info And Pricing