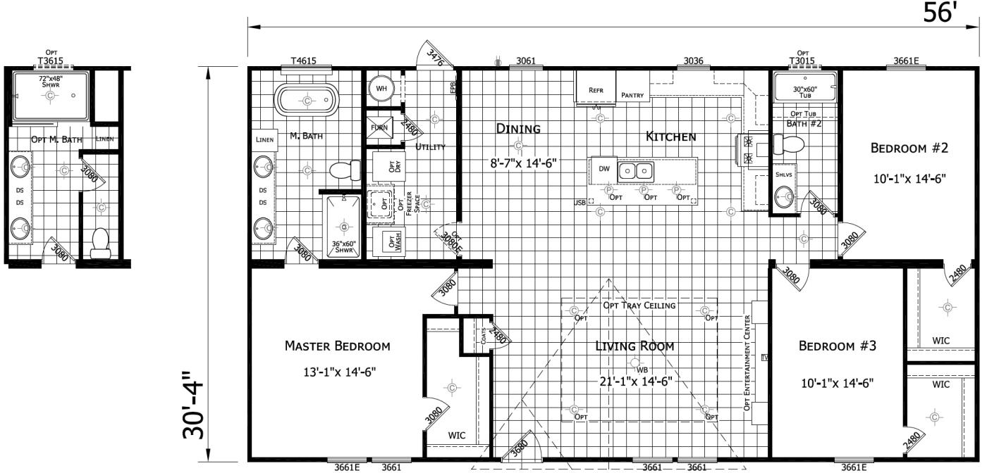
The Gracie