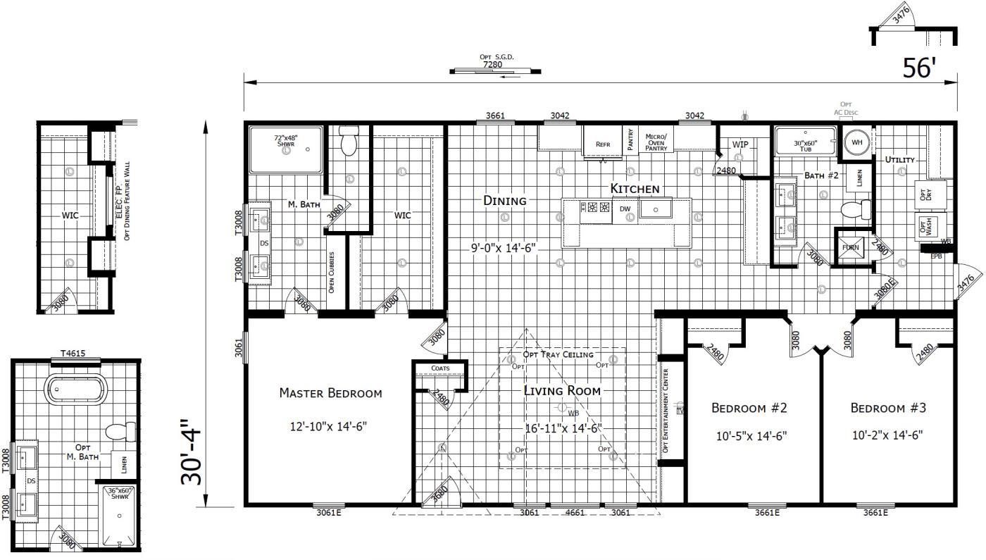
The Ian