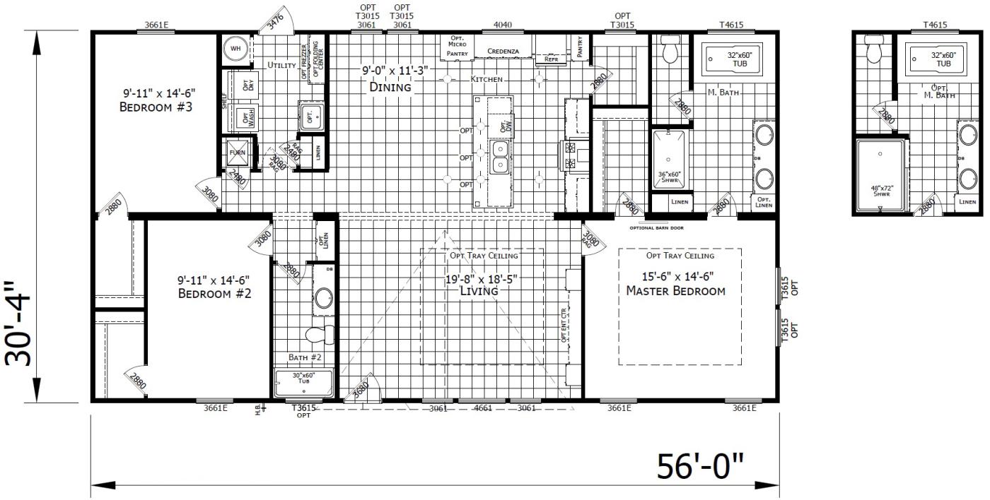
The Josie