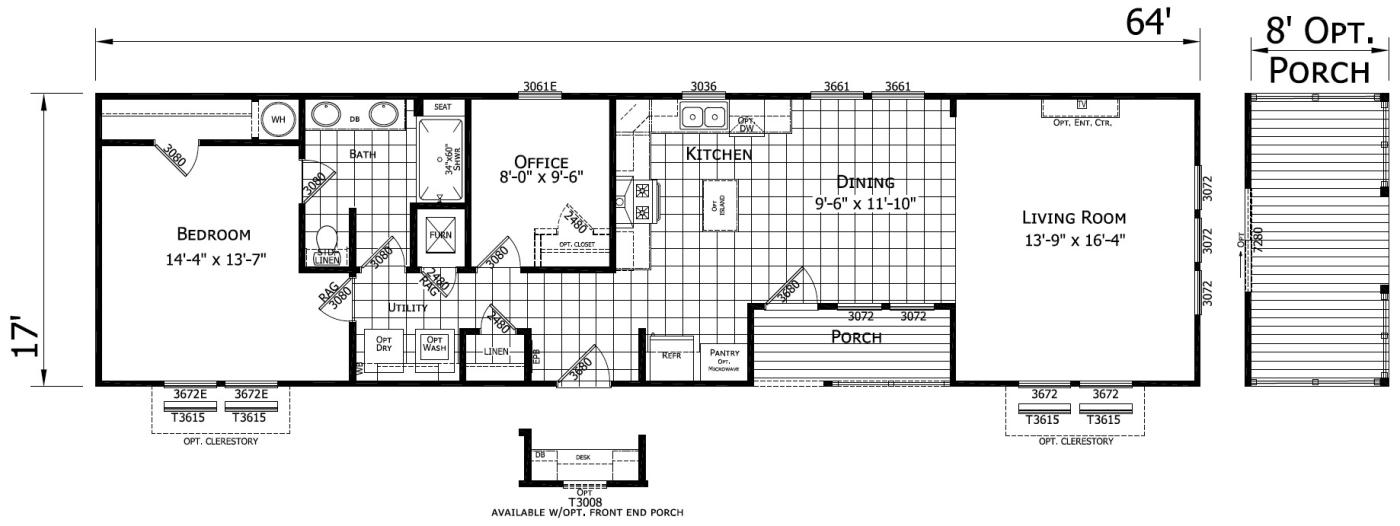
Download Floorplan PDF Download Download Floorplan SQ FT 1088 Bedrooms 1 Bathrooms 1 Request Info And Pricing