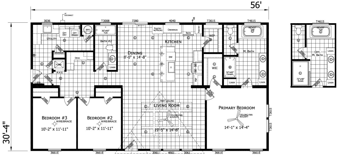
The Kiki