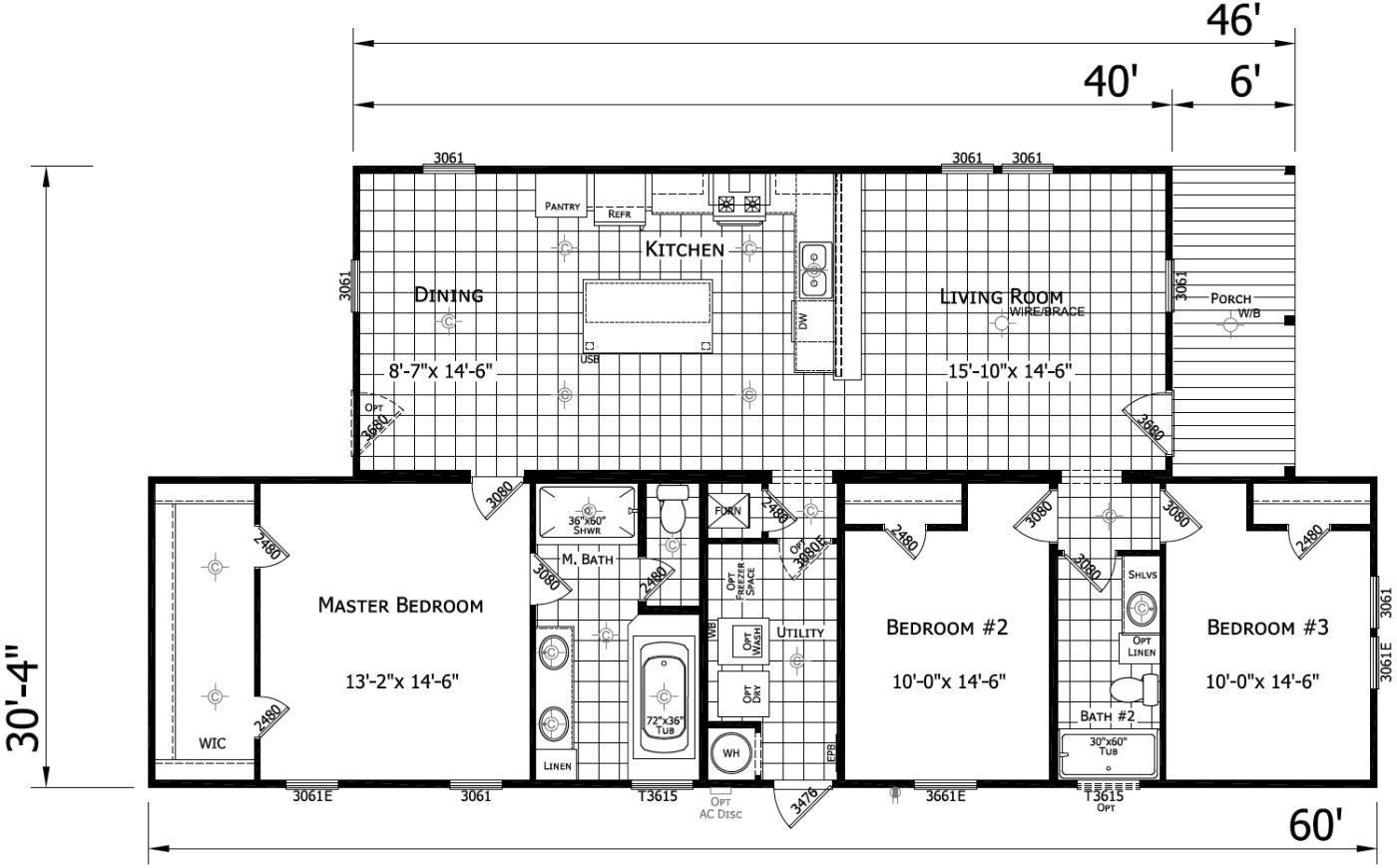
Download Floorplan PDF Download Download Floorplan SQ FT 1517 Bedrooms 3 Bathrooms 2 Request Info And Pricing