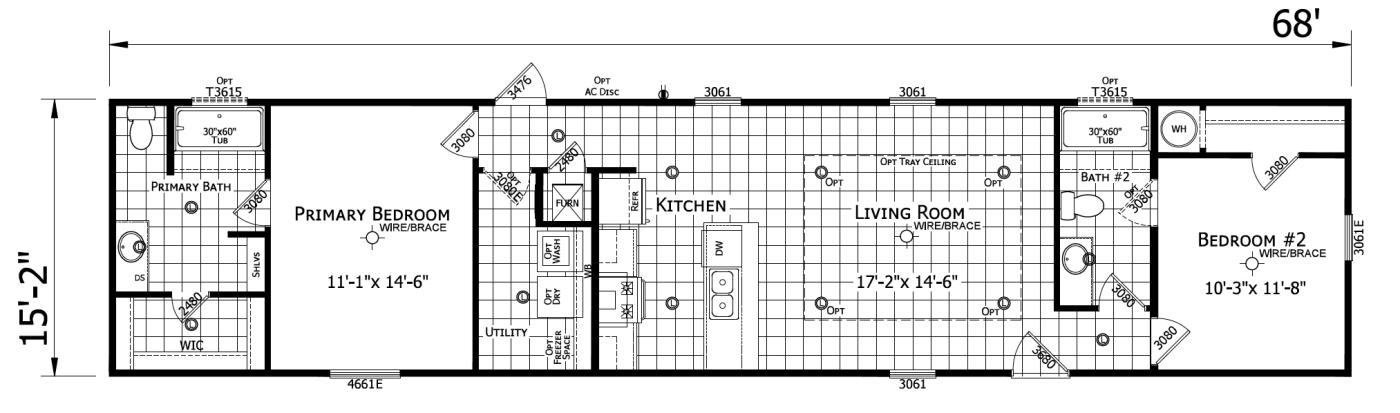
Download Floorplan PDF Download Download Floorplan SQ FT 1031 Bedrooms 2 Bathrooms 2 Request Info And Pricing