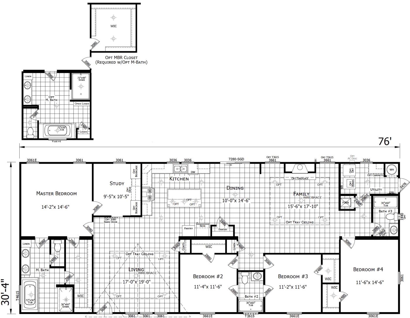
The Payton