Skip to main content
Henderson Home & Land
Main navigation
Home
Our Homes
Display Homes On Site
Land and Building Sites
Floor Plans
About
Financing
Financing Options
Make Your Deposit
Contact
(903) 484-6637
Floor Plans & Home Designs
Henderson Homes has the perfect floor plan for your new home.
Breadcrumb
Home
Floor Plans
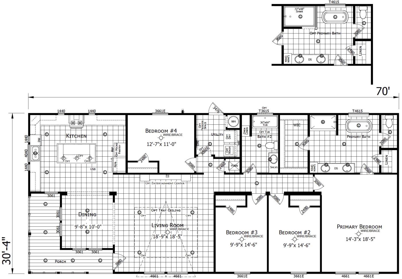
The Pinewood
Download Floorplan
PDF Download
Download Floorplan
Bedrooms
4
Bathrooms
2
Request Info And Pricing