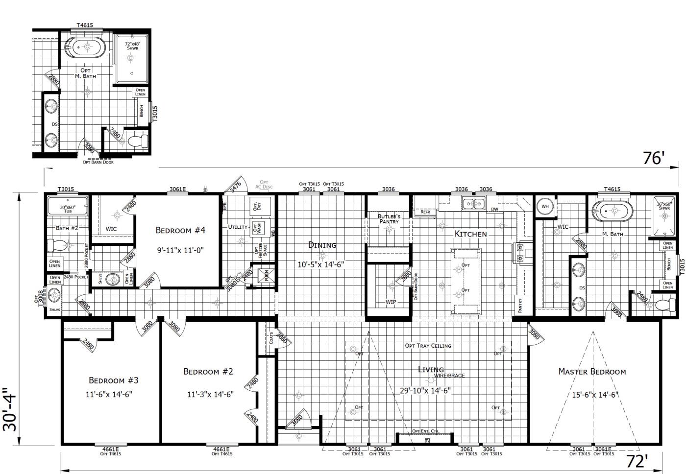
Download Floorplan PDF Download Download Floorplan SQ FT 2235 Bedrooms 4 Bathrooms 2 Request Info And Pricing